Mercaden Dorsten
Property data
Adress:
Westwall 61, Dorsten, Deutschland
Westwall 61, Dorsten, Deutschland
property type:
Shopping-Center
Shopping-Center
total rental space:
14.000 m²
14.000 m²
Available rental space:
52 m²
52 m²
Site area:
-
-
Number of rental units:
29
29
Parking spaces:
430
430
Your contact person
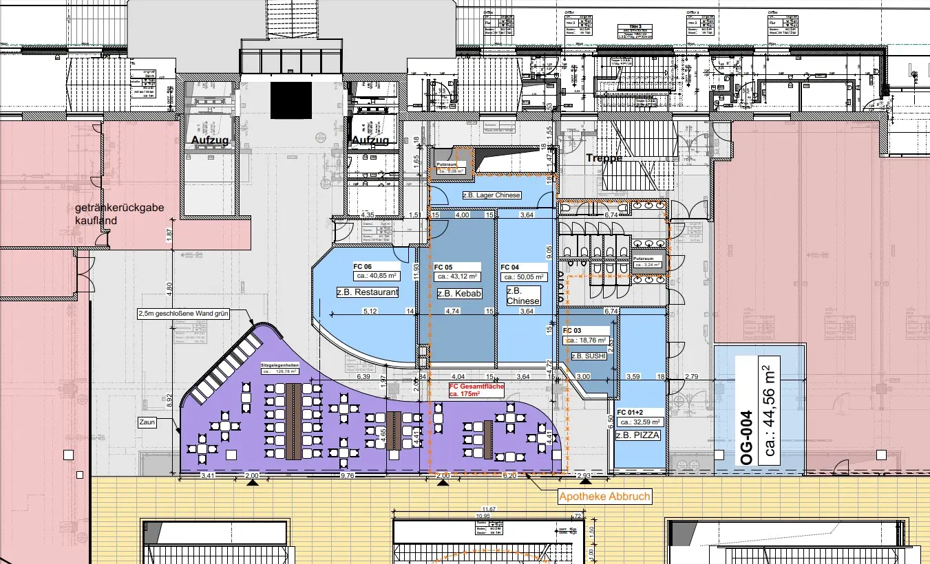
floor plan
Available rental space in the property
Rental areas can be divided
| Size (m²) | Type | Floor | Availability |
|---|---|---|---|
| 52 | Restaurants | OG | from 01.08.2026 |
| 148 | Practice | 2.OG | from 01.06.2026 |
| 47 | Practice | 2.OG | from 01.06.2026 |
Property description and advantages
Geschützter Bereich
Für Details bitte einloggen.
Jetzt einloggenFür Details bitte einloggen.
Map – Westwall 61, Dorsten, Deutschland
Catchment area
Geschützter Bereich
Für Details bitte einloggen.
Jetzt einloggenFür Details bitte einloggen.
Economic data
Geschützter Bereich
Für Details bitte einloggen.
Jetzt einloggenFür Details bitte einloggen.
Video
Geschützter Bereich
Für Details bitte einloggen.
Jetzt einloggenFür Details bitte einloggen.
Downloads / Exposé
Geschützter Bereich
Für Details bitte einloggen.
Jetzt einloggenFür Details bitte einloggen.


