Chemnitz
Objektdaten
Adresse:
Heinrich-Schütz-Straße 62, 09130 Chemnitz, Sonnenberg, Deutschland
Heinrich-Schütz-Straße 62, 09130 Chemnitz, Sonnenberg, Deutschland
Objektart:
Fachmarktzentrum
Fachmarktzentrum
Gesamtmietfläche:
5.630 m²
5.630 m²
Freie Mietfläche:
325 m²
325 m²
Anzahl Mieteinheiten:
2
2
Stellplätze:
66
66
Ihr Ansprechpartner
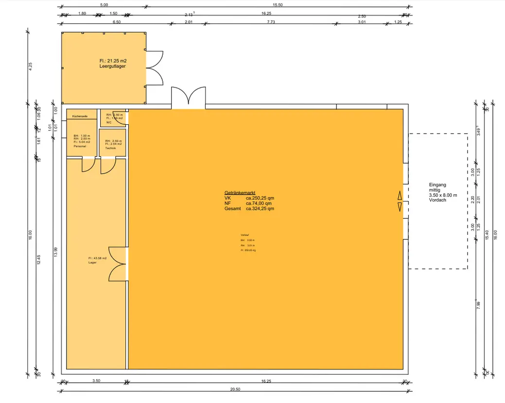
Grundriss
Geschützter Bereich
Für Details bitte einloggen.
Jetzt einloggenFür Details bitte einloggen.
Freie Mietfläche im Objekt
Geschützter Bereich
Für Details bitte einloggen.
Jetzt einloggenFür Details bitte einloggen.
Objektbeschreibung und Vorteile
Geschützter Bereich
Für Details bitte einloggen.
Jetzt einloggenFür Details bitte einloggen.
Karte – Heinrich-Schütz-Straße 62, 09130 Chemnitz, Sonnenberg, Deutschland
Einzugsgebiet
Geschützter Bereich
Für Details bitte einloggen.
Jetzt einloggenFür Details bitte einloggen.
Wirtschaftsdaten
Geschützter Bereich
Für Details bitte einloggen.
Jetzt einloggenFür Details bitte einloggen.
Video
Geschützter Bereich
Für Details bitte einloggen.
Jetzt einloggenFür Details bitte einloggen.
Downloads / Exposé
Geschützter Bereich
Für Details bitte einloggen.
Jetzt einloggenFür Details bitte einloggen.


