Praxis- oder Bürofläche in Zwiesel
Objektdaten
Adresse:
Stadtplatz 18-20, Zwiesel, Deutschland
Stadtplatz 18-20, Zwiesel, Deutschland
Objektart:
Bürogebäude
Bürogebäude
Gesamtmietfläche:
189 m²
189 m²
Freie Mietfläche:
189 m²
189 m²
Grundstücksfläche:
-
-
Anzahl Mieteinheiten:
1
1
Stellplätze:
150
150
Ihr Ansprechpartner
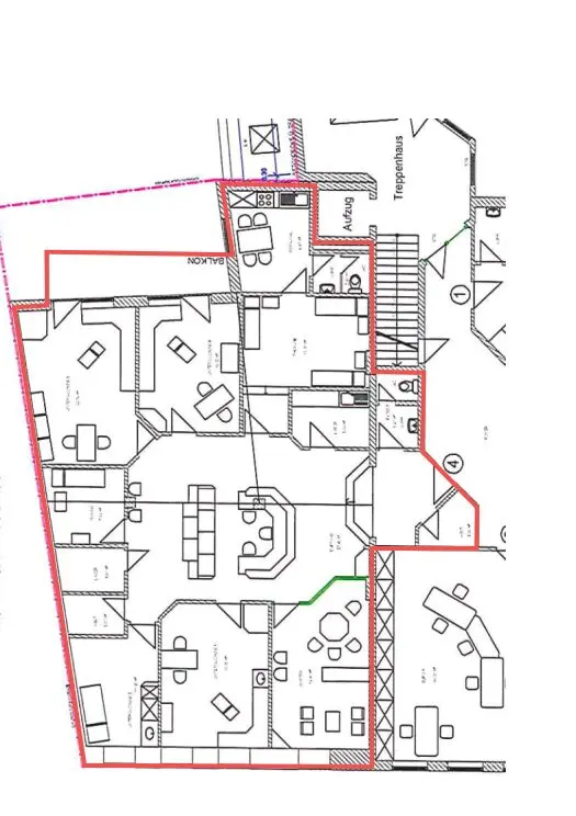
Grundriss
Freie Mietfläche im Objekt
Mietflächen können teilbar sein
| Größe (m²) | Art | Etage | Verfügbarkeit |
|---|---|---|---|
| 189 | Praxis, Büro | 2. OG | ab 01.05.2025 |
Objektbeschreibung und Vorteile
Geschützter Bereich
Für Details bitte einloggen.
Jetzt einloggenFür Details bitte einloggen.
Karte – Stadtplatz 18-20, Zwiesel, Deutschland
Einzugsgebiet
Geschützter Bereich
Für Details bitte einloggen.
Jetzt einloggenFür Details bitte einloggen.


