Sonnefeld, Landkreis Coburg
Objektdaten
Adresse:
Frohnlacher Straße 5, 96242 Sonnefeld, Deutschland
Frohnlacher Straße 5, 96242 Sonnefeld, Deutschland
Objektart:
Fachmarktzentrum
Fachmarktzentrum
Gesamtmietfläche:
10.900 m²
10.900 m²
Freie Mietfläche:
370 m²
370 m²
Anzahl Mieteinheiten:
4
4
Stellplätze:
130
130
Ihr Ansprechpartner
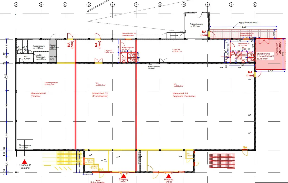
Grundriss
Freie Mietfläche im Objekt
Mietflächen können teilbar sein
| Größe (m²) | Art | Etage | Verfügbarkeit |
|---|---|---|---|
| 374 | Einzelhandel | EG | ab 01.01.2026 |
Objektbeschreibung und Vorteile
Geschützter Bereich
Für Details bitte einloggen.
Jetzt einloggenFür Details bitte einloggen.
Karte – Frohnlacher Straße 5, 96242 Sonnefeld, Deutschland
Einzugsgebiet
Geschützter Bereich
Für Details bitte einloggen.
Jetzt einloggenFür Details bitte einloggen.
Wirtschaftsdaten
Geschützter Bereich
Für Details bitte einloggen.
Jetzt einloggenFür Details bitte einloggen.
Video
Geschützter Bereich
Für Details bitte einloggen.
Jetzt einloggenFür Details bitte einloggen.
Downloads / Exposé
Geschützter Bereich
Für Details bitte einloggen.
Jetzt einloggenFür Details bitte einloggen.


