zentral gelegene Verkaufsfläche in Zwiesel
Objektdaten
Adresse:
Stadtplatz 18-20, Zwiesel, Deutschland
Stadtplatz 18-20, Zwiesel, Deutschland
Objektart:
Fachmarktzentrum
Fachmarktzentrum
Gesamtmietfläche:
182 m²
182 m²
Freie Mietfläche:
182 m²
182 m²
Grundstücksfläche:
-
-
Anzahl Mieteinheiten:
1
1
Stellplätze:
ausreichend kostenfreie Stellplätze stehen zur Verfügung
ausreichend kostenfreie Stellplätze stehen zur Verfügung
Ihr Ansprechpartner
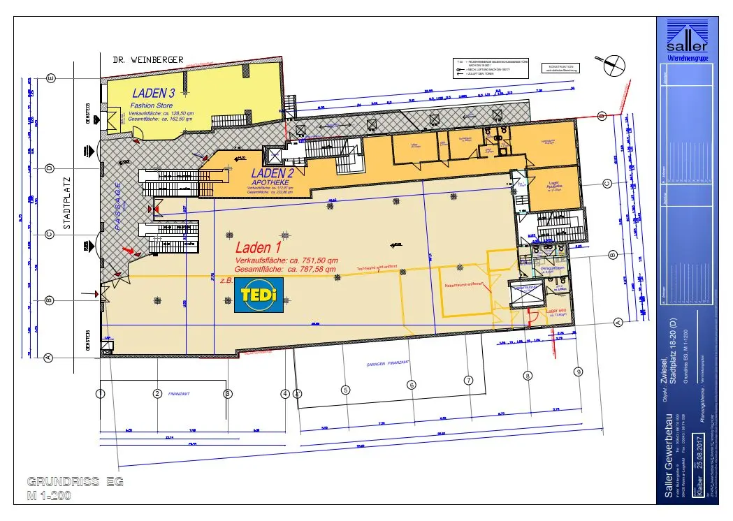
Grundriss
Freie Mietfläche im Objekt
Mietflächen können teilbar sein
| Größe (m²) | Art | Etage | Verfügbarkeit |
|---|---|---|---|
| 182 | Einzelhandel, Lebensmittel | EG | ab 01.10.2025 |
| 48 | Einzelhandel, Lebensmittel | EG | ab 01.01.2026 |
Objektbeschreibung und Vorteile
Geschützter Bereich
Für Details bitte einloggen.
Jetzt einloggenFür Details bitte einloggen.
Karte – Stadtplatz 18-20, Zwiesel, Deutschland
Einzugsgebiet
Geschützter Bereich
Für Details bitte einloggen.
Jetzt einloggenFür Details bitte einloggen.
Video
Geschützter Bereich
Für Details bitte einloggen.
Jetzt einloggenFür Details bitte einloggen.


